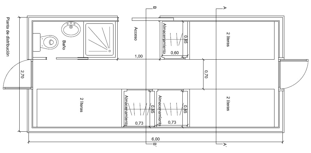
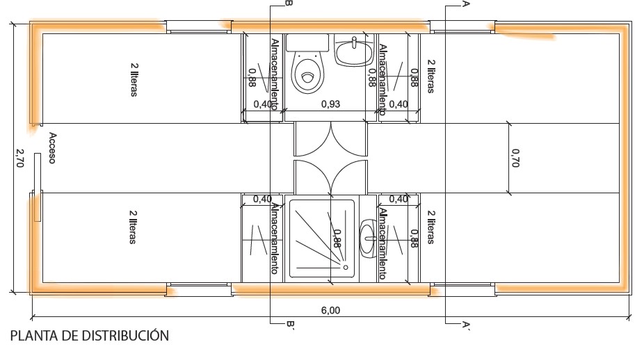
Descripción del Proyecto
Módulo de información modular para el Castro de Baroña, diseñado para integrarse perfectamente en el entorno arqueológico. Construcción sostenible que respeta el patrimonio histórico y proporciona servicios de información a los visitantes.
El proyecto destaca por su diseño modular, materiales duraderos y una construcción que se adapta al paisaje natural del castro, manteniendo la autenticidad del lugar.

















